Особняк на Бульварном кольце Москва, Покровский бульвар, 16с5, Фото 1
 Особняк на Бульварном кольце Москва, Покровский бульвар, 16с5, Фото 2
 Особняк на Бульварном кольце Москва, Покровский бульвар, 16с5, Фото 3
 Особняк на Бульварном кольце Москва, Покровский бульвар, 16с5, Фото 4
 Особняк на Бульварном кольце Москва, Покровский бульвар, 16с5, Фото 5
 Особняк на Бульварном кольце Москва, Покровский бульвар, 16с5, Фото 6
 Особняк на Бульварном кольце Москва, Покровский бульвар, 16с5, Фото 7
Роман Никитин
+7 (495) 252 00 99
Получить консультацию
Москва, Покровский бульвар, 16с5
Особняк на Бульварном кольце
Стоимость
500 000 руб / м²
Особняк на Бульварном кольце

Москва, Покровский бульвар, 16с5

Стоимость
Выберите валюту
rub
eur
usd
262 000 000 руб500 000 руб / м²
Тип объекта: Арендный бизнес, Особняк
Площадь: 524 м²
Свяжитесь с нами
Узнать подробнее
Вы владелец
недвижимости?
Хотите продать
недвижимость?
Обратитесь к нам.
Узнать больше
Продать объект
ID 3172
Ключевые характеристики
    • Метро: Чкаловская
    • Этаж: 1
    • Этажность: 2
    • Ремонт: С отделкой
    • Парковка: Наземная

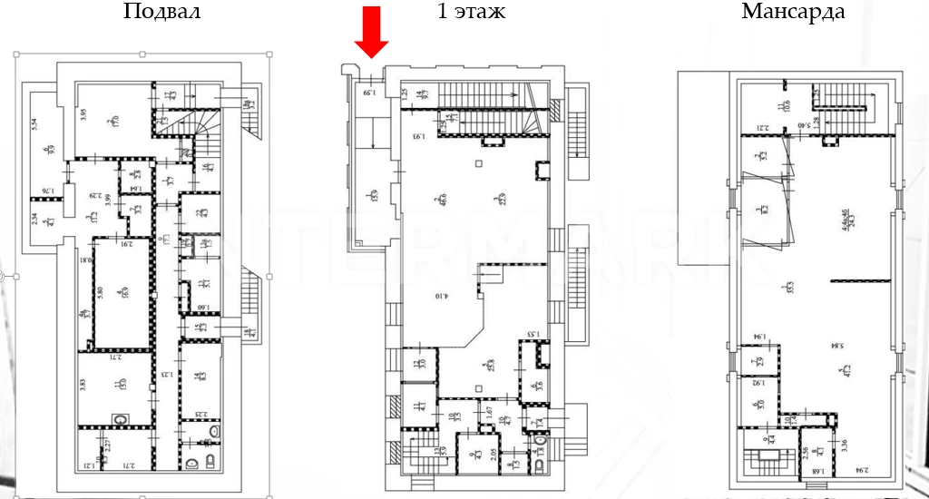
Особняк, 524 кв.м, Москва, Покровский бульвар, 16с5

Продается готовый арендный бизнес с надёжным арендатором. Отдельный особняк на первой линии Покровского бульвара. Площадь здания: 524 кв. м. (Подвал, первый этаж и мансарда). Расстояние от метро Китай-Город и Чкаловская около 900 м. В непосредственной близости находится ВУЗ ВШЭ. Здание не является памятником архитектуры. Электрическая мощность 100-120 кВт. 2 отдельных входа. Ж/Б перекрытия. Высота потолков: 1-й этаж: До плиты 3,35 метра, до перекрытия 2,7 метра. Мансарда: До плиты 3 метра, до перекрытия 2,7 метра. Подвал: До плиты 2,7 метра, до перекрытия 2,3 метра. Год ввода в эксплуатацию по завершении реконструкции: 2023 (есть все разрешения). Ранее в особняке располагалось отделение Сбербанка. Есть депозитарий и кассовые узлы. Земельный участок (аренда): 336 кв.м. Вид разрешенного использования: участки административно-делового вида; проектирование и воссоздание в рамках регенерации офисного здания. Договор аренды на 5 лет до 2030 г. Индексация 5%.

Вы владелец
недвижимости?
Хотите продать
недвижимость?
Обратитесь к нам.
Узнать больше
Продать объект
Новые объекты
Новинки района Басманный

Каждый день мы пополняем наше портфолио новыми эксклюзивными объектами. Вы можете увидеть их в нашей подборке прямо сейчас.

Смотреть объекты
Свяжитесь с агентом
Узнать подробнее
Вы владелец
недвижимости?
Хотите продать
недвижимость?
Обратитесь к нам.
Узнать больше
Продать объект
Подпишитесь на рассылку
новостей рынка и компании
Мобильное приложение Intermark
© 1995-2026 Агентство элитной недвижимости - Intermark Городская Недвижимость. Телефон в Москве: +7 (495) 252 00 99

Наш сайт защищен с помощью сервиса Yandex SmartCaptcha: Условия обработки данных.