Японская кухня в ЖК Shagal Москва, набережная Марка Шагала, Фото 1
 Японская кухня в ЖК Shagal Москва, набережная Марка Шагала, Фото 2
 Японская кухня в ЖК Shagal Москва, набережная Марка Шагала, Фото 3
 Японская кухня в ЖК Shagal Москва, набережная Марка Шагала, Фото 4
 Японская кухня в ЖК Shagal Москва, набережная Марка Шагала, Фото 5
Валерия Косенкова
+7 (495) 252 00 99
Получить консультацию
Москва, набережная Марка Шагала
Японская кухня в ЖК Shagal
Стоимость
702 923 руб / м²
Японская кухня в ЖК Shagal

Москва, набережная Марка Шагала

Стоимость
Выберите валюту
rub
eur
usd
84 140 000 руб702 923 руб / м²
Тип объекта: Арендный бизнес, Общепит
Площадь: 119.7 м²
Свяжитесь с нами
Узнать подробнее
Вы владелец
недвижимости?
Хотите продать
недвижимость?
Обратитесь к нам.
Узнать больше
Продать объект
ID 6078
Ключевые характеристики
    • Метро: Технопарк
    • Этаж: 1
    • Этажность: 19
    • Ремонт: С отделкой
    • Парковка: Подземная

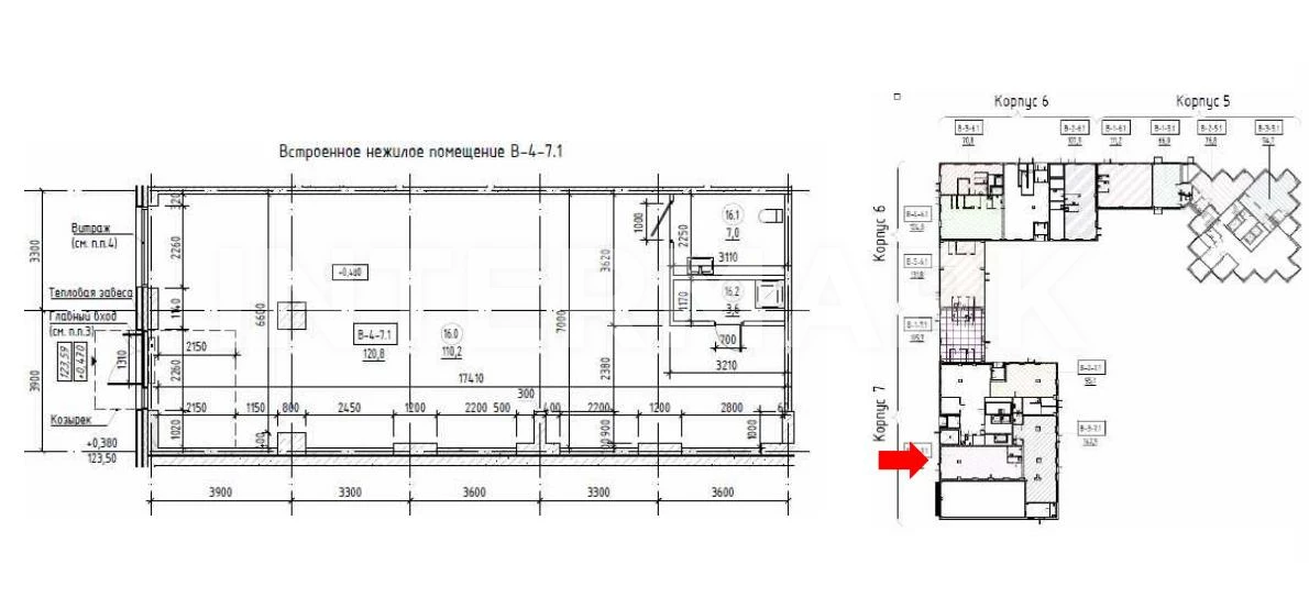
Арендный бизнес, общепит, 119.7 кв.м, Москва, набережная Марка Шагала

Предлагается к продаже помещение в ЖК Shagal. Помещение обладает большими витринными окнами и имеет фасад, выходящий на проезжую часть. В будущем рядом появится подземный переход к набережной, что обеспечит стабильный пешеходный трафик. В шаговой доступности расположены крупные бизнес-центры, школы, детские сады, остановки общественного транспорта и станция метро, медицинские учреждения, развлекательный парк «Остров Мечты», а также торговый центр «Ривьера». Характеристика помещения: Площадь, кв.м – 119,7. Этаж – 1. Отопление – центральное. Тип здания – жилой дом. Высота потолков, м – 4,04. Эл. мощность, кВт – 200. Вывеска – возможна на фасаде. Коммерческий потенциал: Арендатор: Международная сеть доставки роллов «ЁбиДоёби» - 49,7 м2 Вакантная площадь - 70 м2 Потенциальный МАП – 650 000 руб. Окупаемость – 10,8 лет Доходность – 9,27 %

Вы владелец
недвижимости?
Хотите продать
недвижимость?
Обратитесь к нам.
Узнать больше
Продать объект
Новые объекты
Новинки района Даниловский

Каждый день мы пополняем наше портфолио новыми эксклюзивными объектами. Вы можете увидеть их в нашей подборке прямо сейчас.

Смотреть объекты
Свяжитесь с агентом
Узнать подробнее
Вы владелец
недвижимости?
Хотите продать
недвижимость?
Обратитесь к нам.
Узнать больше
Продать объект
Подпишитесь на рассылку
новостей рынка и компании
Мобильное приложение Intermark
© 1995-2026 Агентство элитной недвижимости - Intermark Городская Недвижимость. Телефон в Москве: +7 (495) 252 00 99

Наш сайт защищен с помощью сервиса Yandex SmartCaptcha: Условия обработки данных.