Снять в аренду  Офис в БЦ Банный Москва, Банный переулок, 9, Фото 1
Снять в аренду  Офис в БЦ Банный Москва, Банный переулок, 9, Фото 2
Снять в аренду  Офис в БЦ Банный Москва, Банный переулок, 9, Фото 3
Снять в аренду  Офис в БЦ Банный Москва, Банный переулок, 9, Фото 4
Светлана Моторыкина
+7 (495) 252 00 99
Получить консультацию
Москва, Банный переулок, 9
Офис в БЦ Банный
Стоимость
46 543 руб / м² в год
Офис в БЦ Банный

Москва, Банный переулок, 9

Стоимость
Выберите валюту
rub
eur
usd
973 524 руб46 543 руб / м² в год
Тип объекта: Офис
Площадь: 251 м²
Свяжитесь с нами
Узнать подробнее
Вы владелец
недвижимости?
Хотите сдать
недвижимость?
Обратитесь к нам.
Узнать больше
Сдать объект
ID 6522
Ключевые характеристики
    • Метро: Проспект Мира
    • Этаж: 1
    • Этажность: 4
    • Класс офиса: А
    • Ремонт: С отделкой
    • Парковка: Наземная

Аренда, офис, 251 кв.м, Москва, Банный переулок, 9

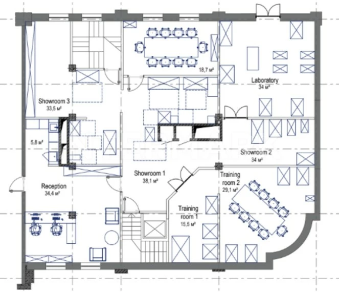
Предлагается в аренду офисный блок с отделкой в БЦ Банный, 9. Стильный концептуальный особняк с офисами класса А. Обособленное комфортное пространство для бизнеса, достигаемое за счет камерности и безопасности, высочайшего уровня эксплуатации, наличия необходимой инфраструктуры и удобной локации в исторической части города. В помещении выполнен качественный ремонт. Также имеется зона Ресепшн, переговорная, миникухня, шоурум (4 шт.), учебный зал (2 шт.).

Вы владелец
недвижимости?
Хотите сдать
недвижимость?
Обратитесь к нам.
Узнать больше
Сдать объект
Новые объекты
Новинки района Мещанский

Каждый день мы пополняем наше портфолио новыми эксклюзивными объектами. Вы можете увидеть их в нашей подборке прямо сейчас.

Смотреть объекты
Свяжитесь с агентом
Узнать подробнее
Вы владелец
недвижимости?
Хотите сдать
недвижимость?
Обратитесь к нам.
Узнать больше
Сдать объект
Подпишитесь на рассылку
новостей рынка и компании
Мобильное приложение Intermark
© 1995-2026 Агентство элитной недвижимости - Intermark Городская Недвижимость. Телефон в Москве: +7 (495) 252 00 99

Наш сайт защищен с помощью сервиса Yandex SmartCaptcha: Условия обработки данных.